
Design Services in Huntington – Engineered for Texas
Professional Blueprints That Meet Code and Exceed Expectations
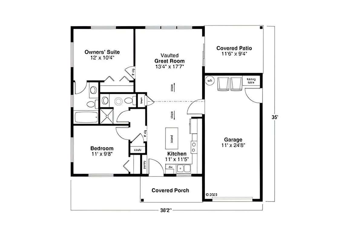
Every successful build starts with a solid plan—one that accounts for structural loads, extreme weather, local codes, and your vision for how the space will function. Backup Generators & Construction offers complete architectural design services in Huntington, including blueprints, floorplans, and stamped plans from a Certified Texas Engineer, ensuring your project is approved quickly and built to withstand the unique demands of Texas weather.
Popular with Huntington clients planning ADUs, additions, or new builds, these designs streamline permitting and eliminate costly change orders during construction.
From structural layouts and mechanical plans to optimized material recommendations, you get a roadmap that guides every trade and keeps your project on schedule and on budget.
Start your project with professionally engineered plans—schedule your design consultation in Huntington today.
How Do Design Services Work in Huntington?
The design process begins with an on-site meeting where you share your goals, budget, and any site constraints like lot lines, setbacks, or existing utilities. The design team then drafts initial layouts, incorporating your input on room sizes, flow, and special features like covered porches or generator hookups. Once you approve the preliminary plans, a Certified Texas Engineer reviews and stamps the blueprints, certifying that every beam, joist, and foundation meets or exceeds state building codes.
Backup Generators & Construction delivers designs that include structural layouts, mechanical plans for HVAC and electrical, and optimized material recommendations that balance cost, durability, and aesthetics. Because the same crew that draws the plans also builds the project, there's no translation gap—what's on paper gets built exactly as designed.
For Huntington homeowners adding square footage, building an accessory structure, or starting from scratch, this service takes the guesswork out of permitting and ensures inspectors approve your plans the first time.
Move forward with confidence—contact us today for Design Services in Huntington.
What Should Huntington Residents Expect?
Backup Generators & Construction has designed and built dozens of residential projects across Huntington and East Texas, from backyard studios to full-scale custom homes.
- What's included in the service? Complete architectural blueprints, engineer-stamped plans, structural and mechanical layouts, material specs, and permit-ready documentation.
- How do we handle code compliance? Every design is reviewed by a Certified Texas Engineer who ensures compliance with state codes and local amendments specific to Angelina County and Huntington.
- What makes our approach different? Because we design and build in-house, your plans are drawn by people who understand real-world construction constraints, material availability, and how Texas weather affects long-term performance.
- Why is local expertise important? Huntington sits in a region with high wind potential, heavy rain, and expansive clay soils—our designs account for these factors from the foundation up.
- How do we serve Huntington specifically? We work directly with local building departments, know which inspectors handle which areas, and can fast-track permit submissions to keep your project moving.
Get the blueprints your project deserves. Reach out now to schedule Design Services in Huntington.
